$464,000
 $2,491 est/mo Sourced by Back At You

3464 Route 106,Salisbury, NB E4J3H6

Salisbury, NB E4J3H6

Share:

Description

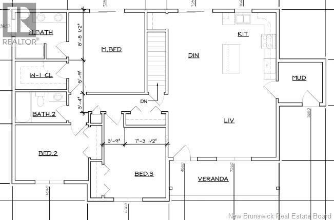
This brand new, walkout bungalow not only offers modern living and beautiful designbut also incredible income potential. With a partially finished basement featuring a separate exterior entrance, full bathroom, large family room, and oversized bedroom, its the perfect setup for a future rental suite, home business, or in-law suite. The main level boasts an open-concept layout with oversized windows that fill the home with natural light. The stylish white kitchen features a walk-in pantry, and a dining area that opens to a deck with serene river viewsperfect for entertaining or quiet evenings. Enjoy the comfort of a new mini split system, providing energy-efficient heating and cooling year-round. The main floor includes three generously sized bedrooms, including a primary suite with a large walk-in closet and full ensuite. A second full bathroom serves the additional two bedrooms. A dedicated mudroom and separate main-floor laundry room add everyday convenience. Downstairs, the partially finished walkout basement includes a large family room with patio doors, a fourth bedroom with an oversized closet, and another full bathroom. The unfinished section offers endless possibilities, with a separate exterior man doorideal for a future rental suite, home business, or custom flex space. This home combines thoughtful design, functionality, and potential in one beautiful package. Measurements are approximate//Salesperson related to seller. (id:13843)

Details

MLS #NB119614
Listing TypeFor Sale
StyleHouse
StatusActive
Year2025
Days On Site159
Listing Provided ByEXIT Realty Associates | Cassidy Hopper

Features

Bed(s)4
Bath(s) 3 Total
SQ Feet1,788
Acreage0.69

Taxes

Property342

Area Information

ProvinceNB
CitySalisbury
Postal CodeE4J3H6
Sourced by Back At You

Request a showing

Request a showing

Loading Form
The information is being provided by CREA. Information deemed accurate but not guaranteed. Information is provided for consumers personal, non-commercial use, and may not be used for any purpose other than the identification of potential properties for purchase. Copyright 2025 CREA. All Rights Reserved.

Contact

Learn More About This Property

ProvinceNB
CitySalisbury
Postal CodeE4J3H6
Sourced by Back At You
Listing Updated: November 4, 2025 at 5:50:29 AM PST